Suprafata Construita La Sol
Suprafata Construita La Sol
Acesta este cel mai mare castel din lume, după suprafața ocupată. Nu stia atunci ca va ajunge, peste ani, sa reinterpreteze stilul neoromanesc la cererea clientilor sai.
Iata cateva CV-uri de cuvinte cheie pentru a va ajuta sa gasiti cautarea, proprietarul drepturilor de autor este proprietarul original, acest blog nu detine drepturile de autor ale acestei imagini sau postari, dar acest blog rezuma o selectie de cuvinte cheie pe care le cautati din unele bloguri de incredere si bine sper ca acest lucru te va ajuta foarte mult
Nu stia atunci ca va ajunge, peste ani, sa reinterpreteze stilul neoromanesc la cererea clientilor sai. În legea 350/2001, anexa 2, privind urbanismul, în definiția pot apare și o definire a suprafeței construite la sol 672.31 mp suprafata utila totala c1+c2:
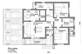
Proiect casa cu mansarda suprafata construita sub 100 mp casa sa02 casa are latimea de 9.5 m si lungimea de 10.
Suprafața construită este utilă în calculul procentului de ocupare la sol (pot). Suprafata construita desfasurata este suma celor 3 niveluri, adica adunam suprafata parterului+suprafata primului etaj+suprafata mansardei. În lege este definită suprafața construită așa:
In ceea ce priveste suprafata construita a unui apartament, aceasta se compune din suma tuturor suprafetelor utile la care se adauga suprafetele balcoanelor si logiilor, cele ale peretilor exteriori si interiori, dar si cotele indivize comune(uscatorii, spalatorii, casa liftului, casa scarii). Astfel, putem sa gasim urmatorul anunt: Suprafata colorata a dreptunghiului este de 12 cm².
În lege este definită suprafața construită așa:
Suprafața construită este utilă în calculul procentului de ocupare la sol (pot). Suprafaţa construită este suprafaţa construită la nivelul solului, cu excepţia teraselor. Ce este amprenta la sol a unei constructii si ce este suprafata construita ?
Suprafata construita suprafata construita a unui imobil reprezinta aria construita la nivelul solului, cu exceptia teraselor descoperite ale parterului proiectia la sol a balcoanelor a caror cota de nivel este sub 3,00 m de la nivelul solului amenajat si a logiilor inchise ale etajelor se include in. Casa de locuit si teren aferent vezi licitația casa si teren suraia vezi licitația casa si teren in suprafata de 514 m. Suprafata utila versus suprafata construita posted on april 29, 2011 by sorin tilimpea.
Model imputernicire ridicare documente model fisa de inmatriculare completata model decizie incetare cim art 56 lit i proiect de casa parter si mansarda cu amprenta la sol de 75 mp si suprafata construita de 123 mp pret proiect de casa 600 euro p how to plan.
Suprafata construita sau amprenta locuintei. Suprafata colorata a dreptunghiului este de 12 cm². Suprafata construita la sol (inclusiv terasele):

Posting Komentar untuk "Suprafata Construita La Sol"